Saunavaunu
Valitse itse, missä saunot
Saunavaunun avulla voit itse valita missä saunot. Liikutettava saunavaunu on todella kätevä viedä esimerkiksi mökille tai muualle, missä saunaa ei muuten olisi.
Vakiona tässä vaunupaketissa on kuusilauteet ja kuusi panelointi, halutessasi voit valita Saunapaketti ohjelmasta yksilöllisen saunakokonaisuuden.
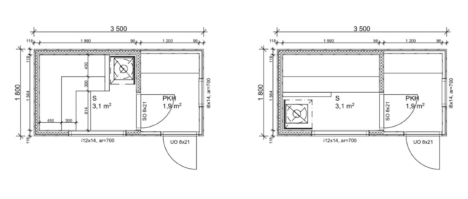
Saunan mitat 2000×2000 ja pukuhuone 1300×2000.
Saunakungenin tarjoamat saunavaunut
NORRELDEN
- Hinta: alkaen 17990kr
- Toimitusaika: 6 viikkoa tilauksesta (hinta sisältää toimituksen asiakkaan pihaan)
- Maksuehto: 14pv, kun tuote on toimitettu.
- Ulkoseinät: 3 ULKOVÄRIÄ ruskea, harmaa, musta
- Sisäseinät: Höylätty kuusipaneeli 14×95 mm.
- Runko: 40×40 mm alumiiniputki, hitsattu.
Lämpöeristys: uretaani 20 mm:n eristelevyllä + alumiinifolio + 21mm tuuletusväli. - Katto: Konesaumattu peltikatto.
- Kiuas: Harvia + kiuassuoja+savupiippu
- Ovi: paneloitu, lasiaukollinen 6 mm turvalasi.
- Lauteet: Gren kuusi
- Ikkunat: 6 mm:n laminoitua turvalasia.
- Lattia: 15 mm:n vesivaneria, viemäriaukko nurkassa, josta vesi voidaan ohjata
säilöön.
Ulkoseinät: Harmaaksi maalattu 14×95 kuusipaneeli.
Sisäseinät: Höylätty kuusipaneeli 14×95 mm.
Runko: 40×40 mm alumiiniputki, hitsattu.
Lämpöeristys: Finnfoam 20 mm:n eristelevyllä + alumiinifolio + 21mm tuuletusväli.
Katto: Konesaumattu peltikatto.
Ovi: paneloitu, lasiaukollinen 6 mm turvalasi.
Ikkunat: 6 mm:n laminoitua turvalasia.
Lattia: 15 mm:n vesivaneria, viemäriaukko nurkassa, josta vesi voidaan ohjata säilöön.
Valittu tuote: CP350-RB/DROP EC0220AK
Kokonaispaino: 1400 kg
Omapaino: 302 kg
Kantavuus: 1098 kg
Pituus: 486 cm
Leveys: 208 cm
Lavan pituus: 350 cm
Lavan leveys: 208 cm
Lastauskorkeus: 57 cm
Runko: Hitsattu
Jarrut: On
Jousitus: kumivääntöjousi
Renkaat: 195/55 R10C 5 x 112 M+S
Saunojen hoito-ohjeet
- Muista kuivattaa puutuotteet huolella aina käytön jälkeen. Suosittelemme noin 30 minuutin jälkilämpöä kiuas päällä, saunan ovat ja ikkunat kiinni sekä tehostettua ilmanvaihtoa.
- Paneelit kannattaa myös imuroida pölystä säännöllisesti.
- Puutuotteille voidaan käyttää saunan puhdistukseen tarkoitettuja välineitä.
- Puutuotteet voidaan pestä saunan puhdistukseen tarkoitetulla miedolla pesuaineella.
- Pesu käytöstä riippuen 1-4 kertaa vuodessa, puupinnat eivät pidä liiasta vedestä.
- Vahvat pesuaineliuokset saattavat vaurioittaa tuotteen pintaa.
- Kaikkia tuotteita voidaan pintakäsitellä saunasuojatuotteilla tai maalilla. Saunaan tuleville puutuotteille valittava lämpöä ja kosteutta kestävä käsittelyaine.
- Pintakäsittely on hyvä uusia saunan käytöstä riippuen vähintään vuosittain. Käsittelyn yhteydessä puutuotetta on mahdollista hioa kevyesti, mikäli tarvetta.